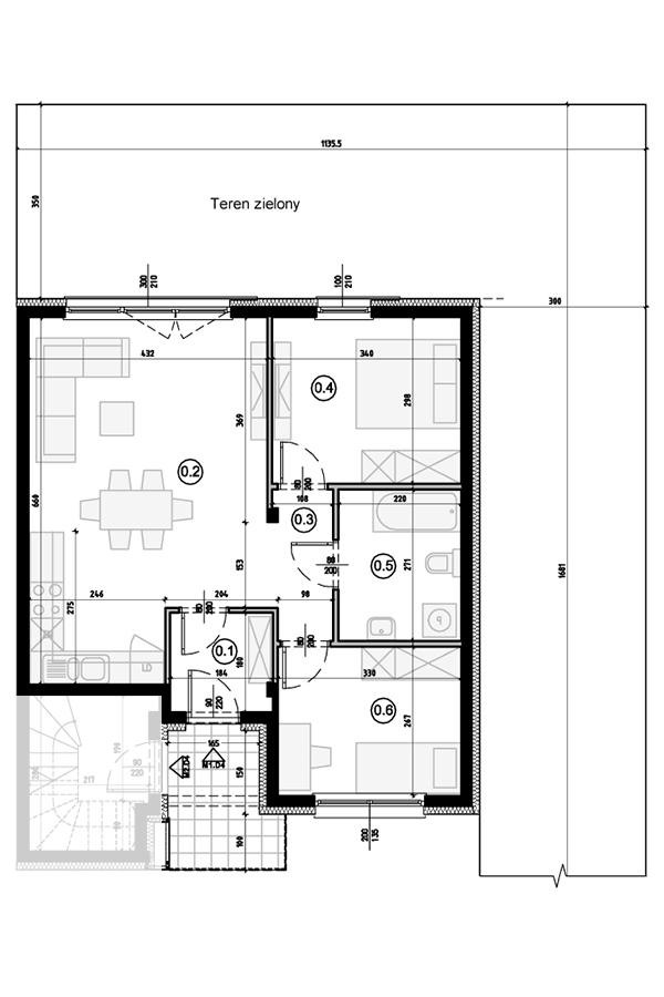
MIESZKANIE
M1.D4
OPIS POMIESZCZEŃ
| Pomieszczenie | Metraż (m²) |
|---|---|
| 0.1 Wejście - wiatrołap | 3,27 |
| 0.2 Salon z otwartą kuchnią | 25,84 |
| 0.3 Komunikacja | 3,00 |
| 0.4 Sypialnia 1 | 10,13 |
| 0.5 Łazienka | 5,96 |
| 0.6 Sypialnia 2 | 8,81 |
| Łącznie | Metraż (m²) |
|---|---|
| Powierzchnia użytkowa | 57,01 |
| Powierzchnia terenu zielonego | 79,67 |
LOKALIZACJA MIESZKANIA


SCHEMAT
ZAGOSPODAROWANIA TERENU

M1 – Mieszkania na parterze 57,00 m2 z ogródkami od strony zachodniej
M2 – Mieszkania na piętrze, dwupoziomowe 110,00 m2 z tarasami dachowymi
D1/D2/D3/D4 – Numery domów
1. WJAZD i WEJŚCIE NA TEREN OSIEDLA
2. WEWNĘTRZNA DROGA MANEWROWA
3. CIĄG PIESZY- DOJŚCIE DO DOMÓW
4. MIEJSCA PARKINGOWE
5. ZADASZONE MIEJSCA PARKINGOWE
6. MIEJSCE GROMADZENIA ODPADÓW
PRZEKRÓJ
DOMU TYPOWEGO

