MIESZKANIE
M2.D3
OPIS POMIESZCZEŃ
| Parter | Metraż (m²) |
|---|---|
| 0.1 Wejście - schody wewnętrzne | 5,92 |
| Piętro | Metraż (m²) |
|---|---|
| 1.1 Schody wewnętrzne - przedsionek | 8,40 |
| 1.2 Salon z otwartą kuchnią | 28,14 |
| 1.3 Komunikacja | 3,11 |
| 1.4 Sypialnia 1 | 10,13 |
| 1.5 Łazienka | 5,31 |
| 1.6 Sypialnia 2 | 9,04 |
| 64,15 |
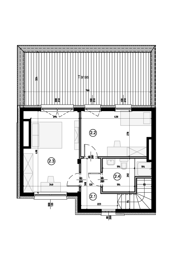
| Poddasze | Metraż (m²) |
|---|---|
| 2.1 Komunikacja | 7,47 |
| 2.2 Sypialnia 3 | 11,59 |
| 2.3 Sypialnia 4 | 16,06 |
| 2.4 Łazienka | 4,98 |
| 40,10 |
| Łącznie | Metraż (m²) |
|---|---|
| Powierzchnia użytkowa | 110,17 |
| Powierzchnia tarasu | 24,59 |
LOKALIZACJA MIESZKANIA




SCHEMAT
ZAGOSPODAROWANIA TERENU

M1 – Mieszkania na parterze 57,00 m2 z ogródkami od strony zachodniej
M2 – Mieszkania na piętrze, dwupoziomowe 110,00 m2 z tarasami dachowymi
D1/D2/D3/D4 – Numery domów
1. WJAZD i WEJŚCIE NA TEREN OSIEDLA
2. WEWNĘTRZNA DROGA MANEWROWA
3. CIĄG PIESZY- DOJŚCIE DO DOMÓW
4. MIEJSCA PARKINGOWE
5. ZADASZONE MIEJSCA PARKINGOWE
6. MIEJSCE GROMADZENIA ODPADÓW
PRZEKRÓJ
DOMU TYPOWEGO

